CARATINGA- Na tarde desta segunda-feira (20), um grupo de moradores da Ilha do Rio Doce, se reuniu na porta da Prefeitura para contestar a qualidade da água que foi fornecida à comunidade, após decisão na Justiça.
No ano de 2015, com o rompimento da barragem de Mariana, os rejeitos de minério chegaram até a localidade através da contaminação do Rio Doce. Os moradores ainda reclamam da água poluída e reivindicam às autoridades água com qualidade para o consumo.
A Ilha pertence ao município de Caratinga, mas, está colada no Vale do Aço, a apenas 5 km de Ipatinga. No entanto, a localidade que pertence ao distrito de Cordeiro de Minas está a aproximadamente 93 km de distância da sede do município de Caratinga.
A Prefeitura de Caratinga informa que, em cumprimento a uma determinação judicial, realizou no dia 16 de outubro de 2023 uma tentativa de fornecimento de água potável para os moradores da Ilha do Rio Doce. “Entretanto, lamentavelmente, os moradores recusaram o recebimento da água, alegando a presença de um nível elevado de ferrugem”, afirma.
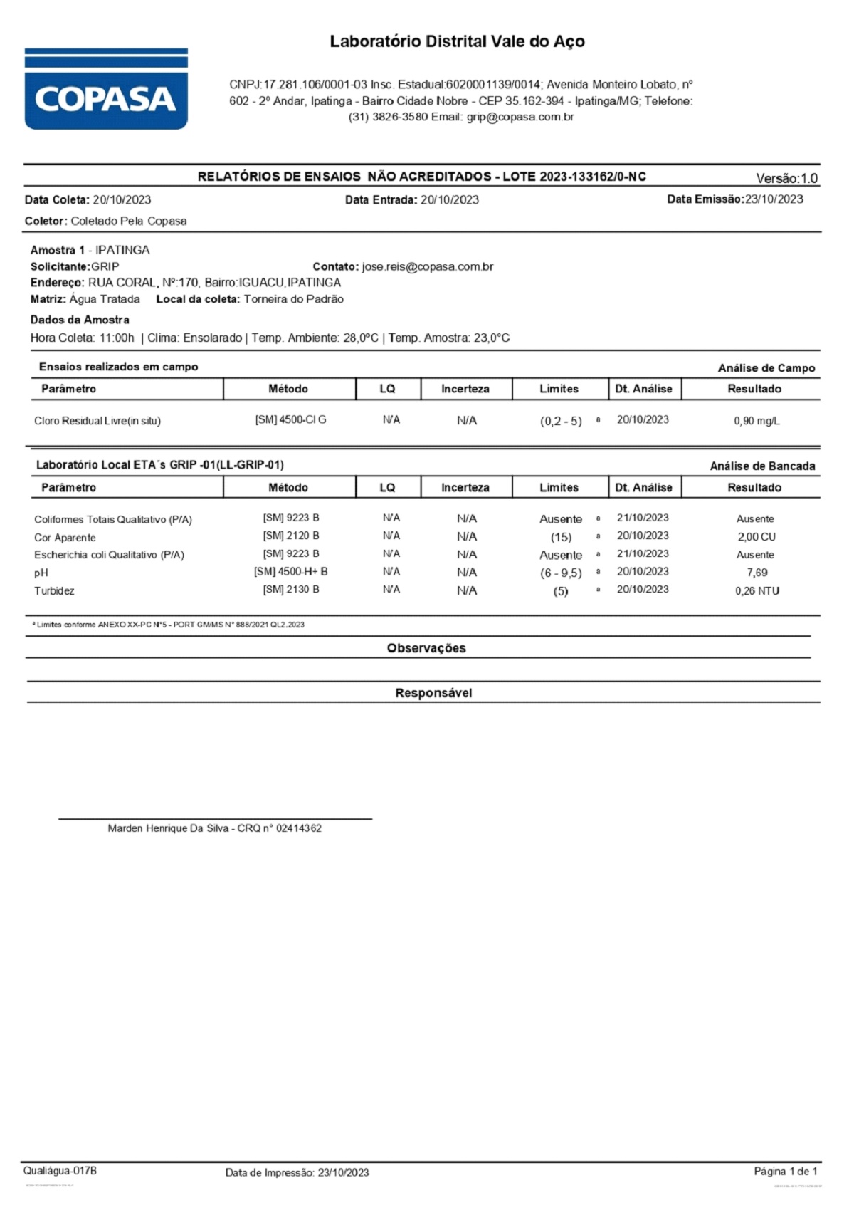
Diante dessa recusa, a Secretaria de Meio Ambiente e Serviços Urbanos afirma que tomou as medidas necessárias, providenciando a higienização do caminhão responsável pelo transporte da água e um novo abastecimento. “Ressaltamos que a qualidade da água fornecida foi posteriormente analisada pela Copasa, sendo constatado que os níveis de ferrugem estavam totalmente dentro da margem aceitável conforme os padrões estabelecidos”, informou.
Por meio de nota, a Prefeitura ainda disse que é importante destacar que, mesmo após a confirmação da qualidade da água, a comunidade, mais uma vez, recusou-se a receber o fornecimento. “Em vista desses acontecimentos, a Secretaria de Meio Ambiente e Serviços Urbanos comunicou em juízo a impossibilidade operacional de atender às exigências da comunidade, visto que estas parecem desvinculadas de critérios técnicos estabelecidos”.
E completa que, “reiteramos o compromisso da Prefeitura em garantir o abastecimento de água com base em padrões de qualidade reconhecidos, ao mesmo tempo, em que buscamos compreender e resolver as preocupações da comunidade de maneira colaborativa e técnica. A Prefeitura permanece à disposição para esclarecimentos adicionais e para trabalhar em conjunto com a comunidade visando a melhoria contínua dos serviços prestados”.









